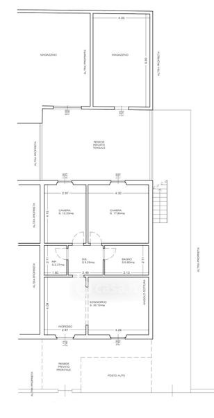
Appartamento in vendita Via Crocicchio dell'Oro , Campi Bisenzio
Salva
Casa.it
1/26
  • Street View
  • Map