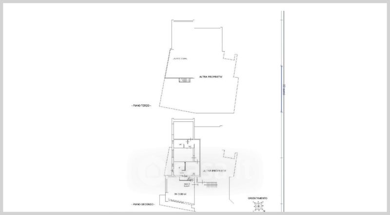
Appartamento in vendita Via Dante Alighieri , Capraia e Limite
Salva
Casa.it
1/22
  • Street View
  • Map