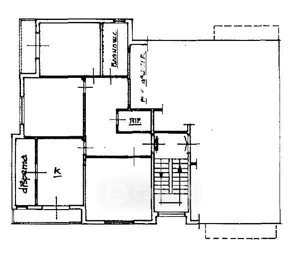
Appartamento in vendita Viale Bruno Buozzi 9, Castelfiorentino
Salva
Casa.it
1/34
  • Street View
  • Map