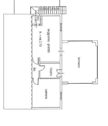
Appartamento in vendita Via Adua 66, Castiglion Fiorentino
Salva
Casa.it
1/20
  • Street View
  • Map