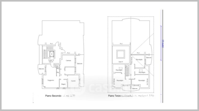
Appartamento in vendita Località Montecchio , Castiglion Fiorentino
Salva
Casa.it
1/32
  • Street View
  • Map