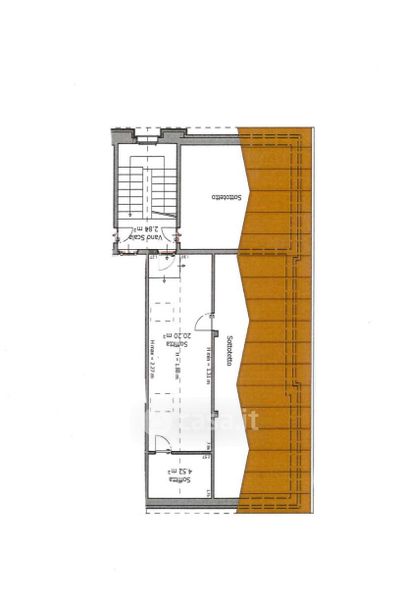
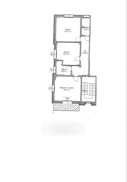
Appartamento in vendita Viale della Repubblica , Cecina
Salva
Casa.it
1/9
  • Street View
  • Map