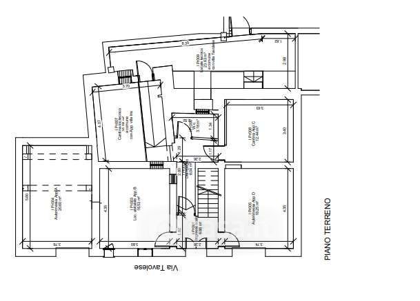
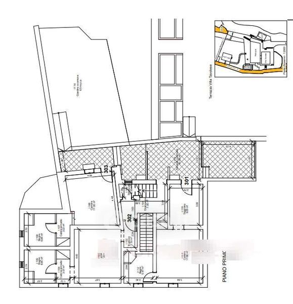
Appartamento in vendita Via di Tavolese , Certaldo
Salva
Casa.it
1/39
  • Street View
  • Map