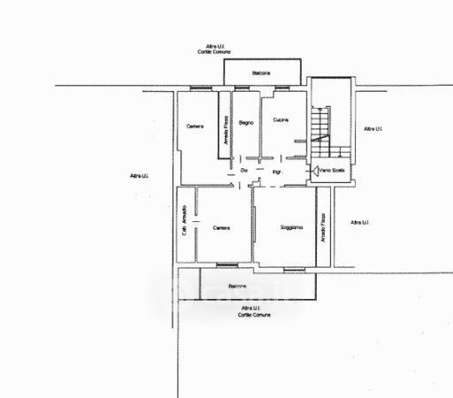
Appartamento in vendita Strada delle Case 39, Chianciano Terme
Salva
Casa.it
1/15
  • Street View
  • Map