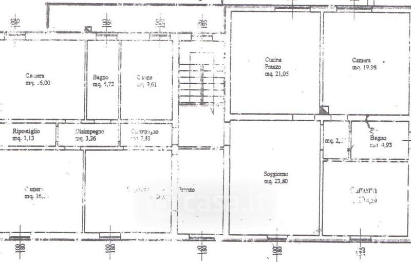
Appartamento in vendita Via M. Morgantini 10, Chiusi
Salva
Casa.it
1/21
  • Street View
  • Map