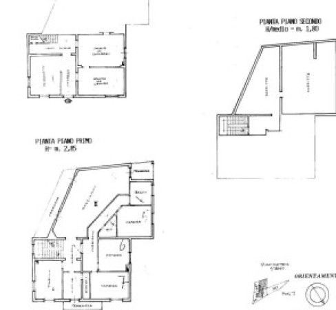
Appartamento in vendita Via San Orsola 17, Chiusi
Salva
Casa.it
1/25
  • Street View
  • Map