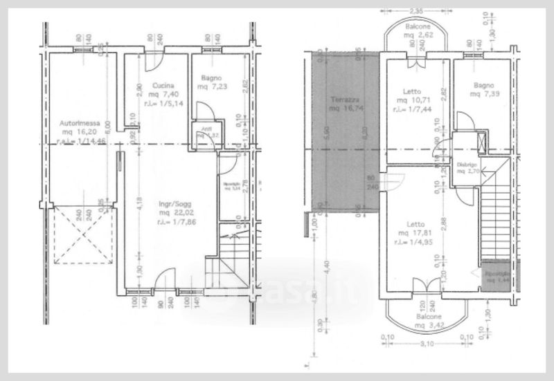
Appartamento in vendita Via di Casa al Cincio , Civitella in Val di Chiana
Salva
Casa.it
1/32
  • Street View
  • Map