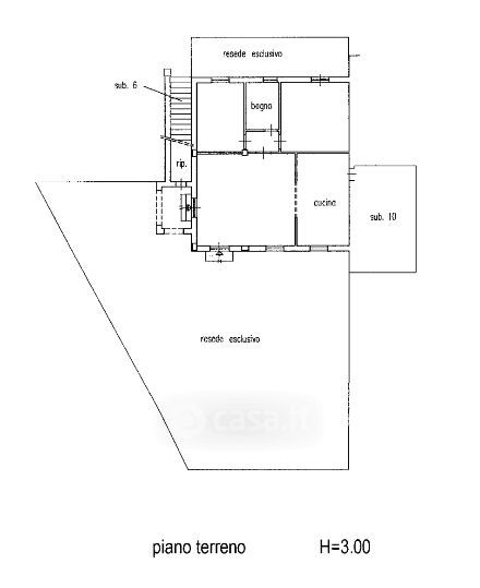
Appartamento in vendita Case Sparse Burcinella , Cortona
Salva
Casa.it
1/41
  • Street View
  • Map