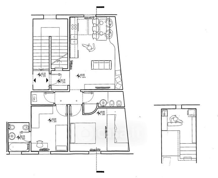
Appartamento in vendita Via San Mamante , Empoli
Salva
Casa.it
1/24
  • Street View
  • Map