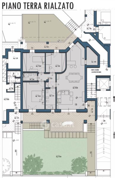
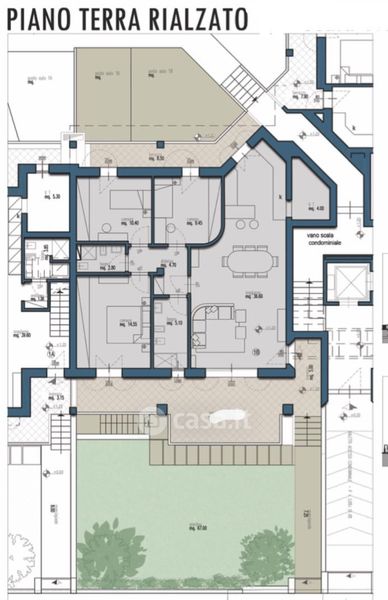
Appartamento in vendita Via Raffaello Sanzio 50053, Empoli
Salva
Casa.it
1/19
  • Street View
  • Map