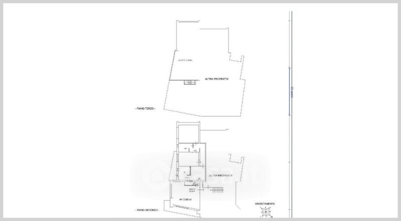
Appartamento in vendita Via Ponte a Elsa Brusciana , Empoli
Salva
Casa.it
1/32
  • Street View
  • Map