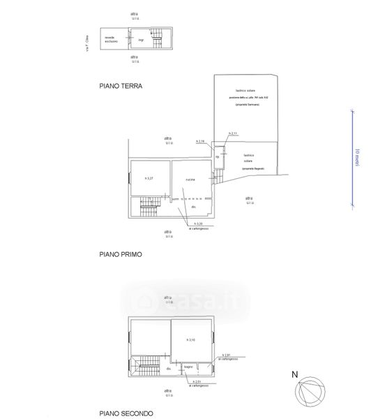
Appartamento in vendita Via Francesco Cilea 26, Empoli
Salva
Casa.it
1/25
  • Street View
  • Map