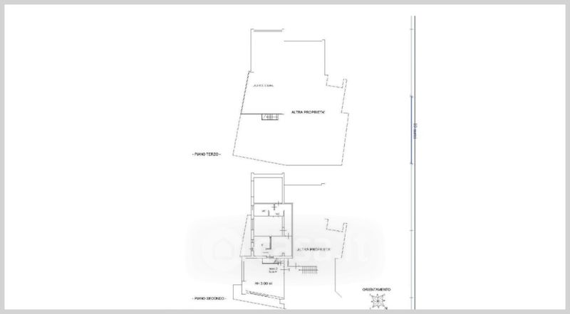
Appartamento in vendita Strada Statale Brisighellese - Ravennate , Fiesole
Salva
Casa.it
1/32
  • Street View
  • Map