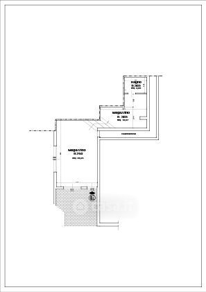
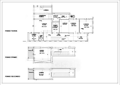
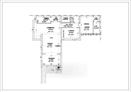
Appartamento in vendita Via Chiantigiana , Firenze
Salva
Casa.it
1/56
  • Street View
  • Map