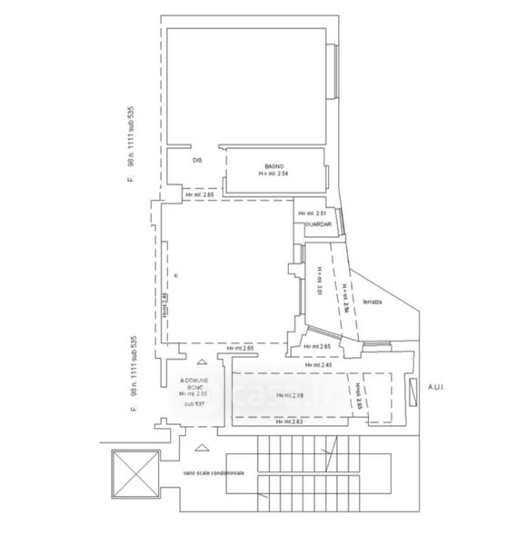
Appartamento in vendita Viale Eleonora Duse , Firenze
Salva
Casa.it
1/26
  • Street View
  • Map