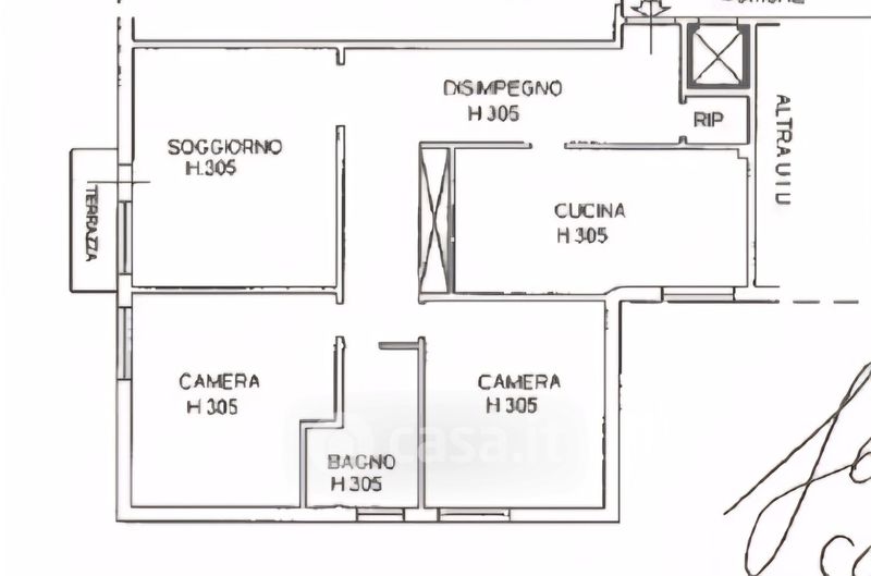
Appartamento in affitto Via Giuseppe Bandi , Firenze
Salva
Casa.it
1/1
  • Street View
  • Map