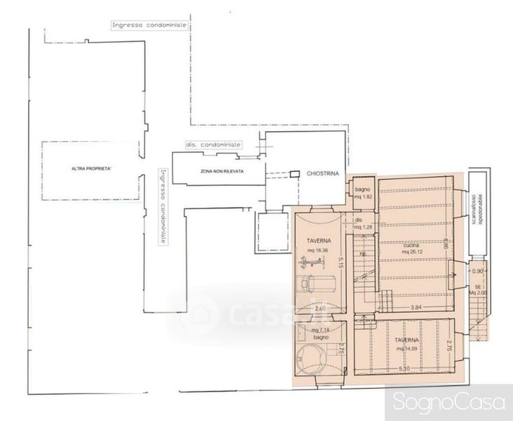
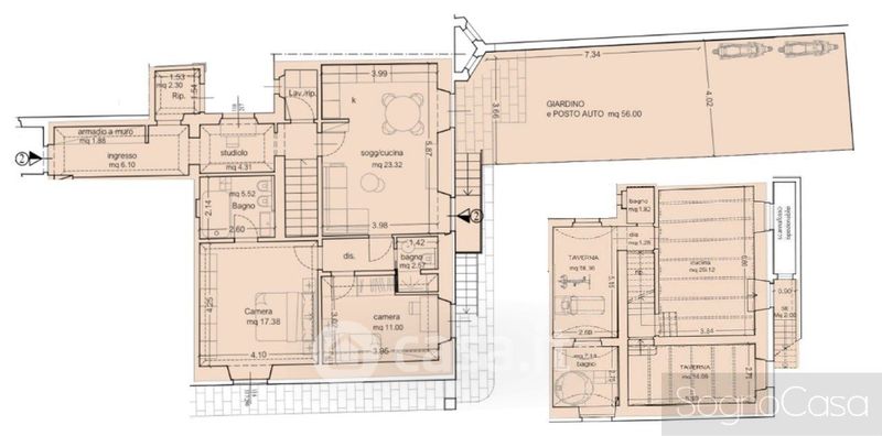
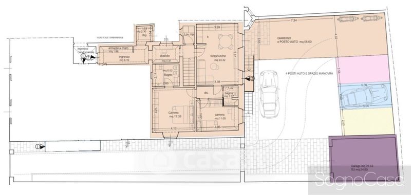
Appartamento in vendita Via Luca Giordano , Firenze
Salva
Casa.it
1/27
  • Street View
  • Map