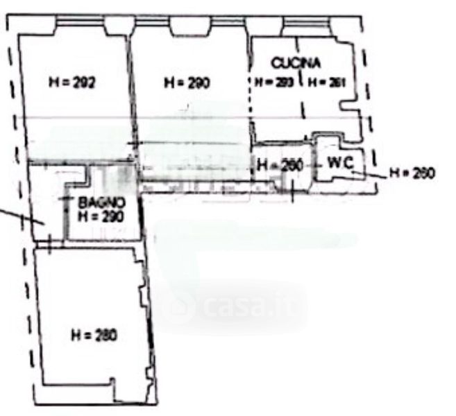
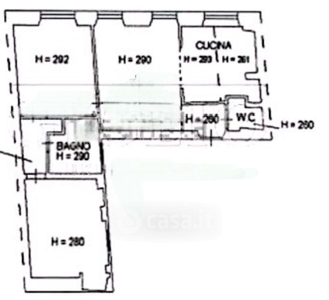
Appartamento in vendita Borgo San Iacopo , Firenze
Salva
Casa.it
1/19
  • Street View
  • Map