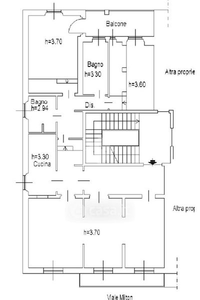
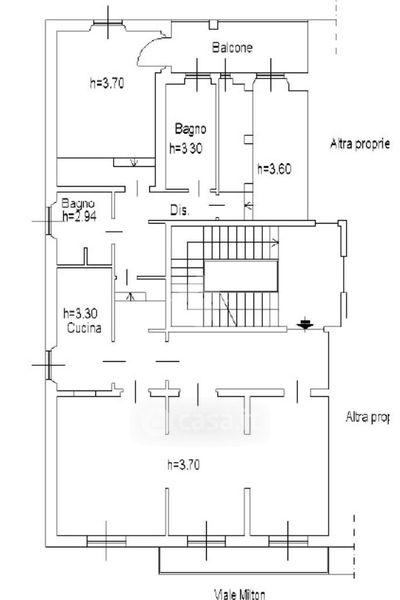
Appartamento in vendita Viale Giovanni Milton 33, Firenze
Salva
Casa.it
1/36
  • Street View
  • Map