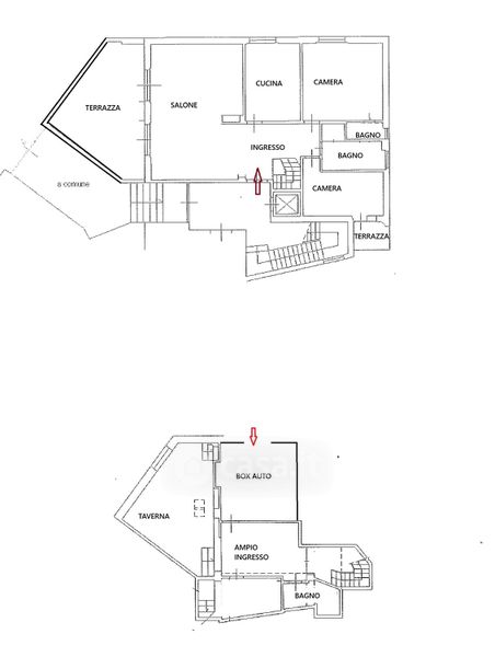
Appartamento in vendita Lungarno Cristoforo Colombo , Firenze
Salva
Casa.it
1/37
  • Street View
  • Map