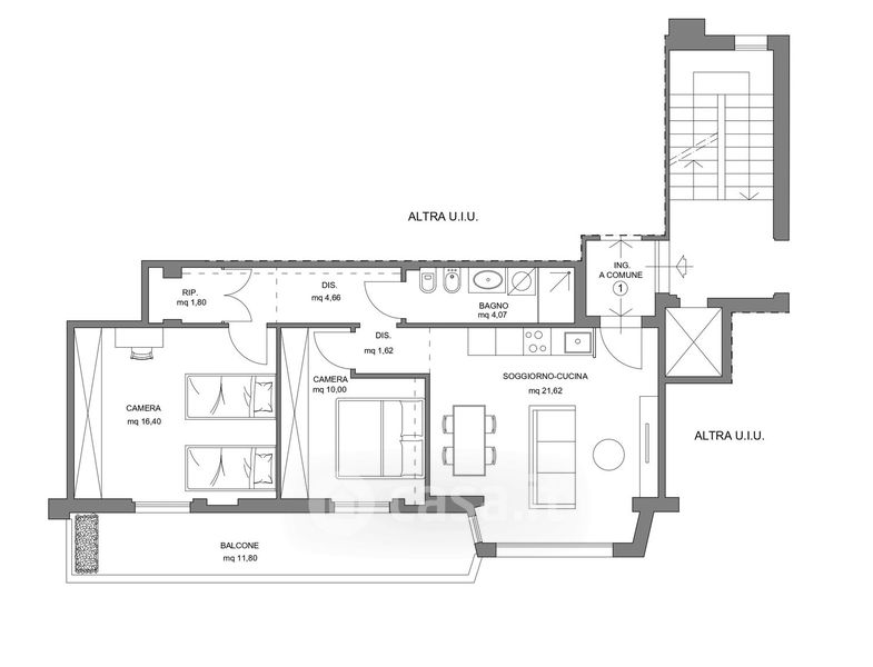
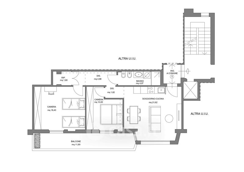
Appartamento in vendita Via delle Porte Nuove , Firenze
Salva
Casa.it
1/32
  • Street View
  • Map