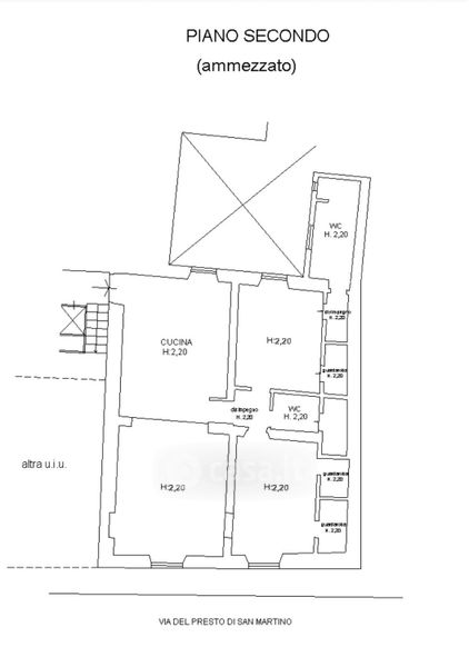
Appartamento in vendita Via del Presto di San Martino 11, Firenze
Salva
Casa.it
1/28
  • Street View
  • Map