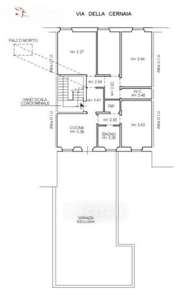
Appartamento in vendita Via della Cernaia 40, Firenze
Salva
Casa.it
1/30
  • Street View
  • Map