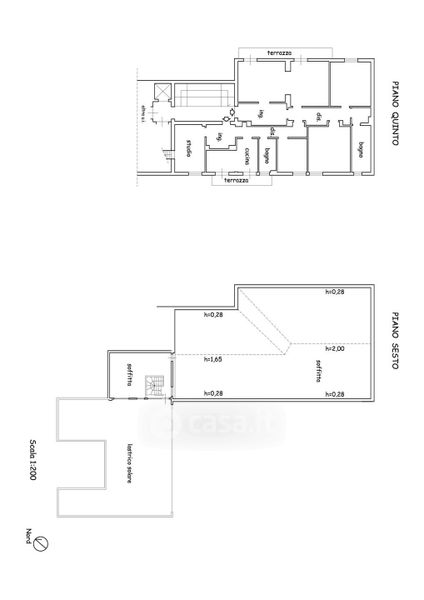
Appartamento in vendita Via Alfonso la Marmora 51, Firenze
Salva
Casa.it
1/28
  • Street View
  • Map