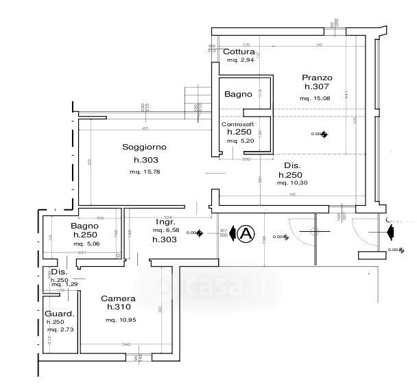
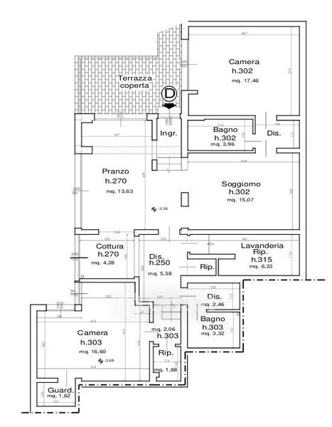
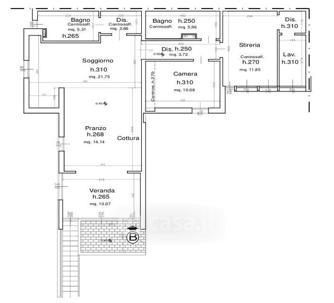
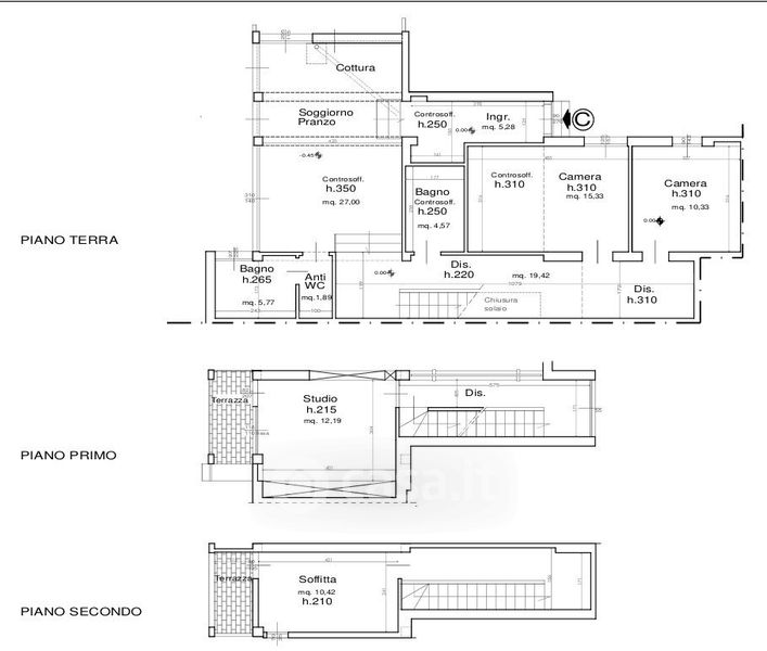
Appartamento in vendita Via Chiantigiana , Firenze
Salva
Casa.it
1/10
  • Street View
  • Map