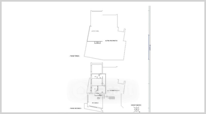
Appartamento in vendita Via Giuseppe di Vittorio , Foiano della Chiana
Salva
Casa.it
1/32
  • Street View
  • Map