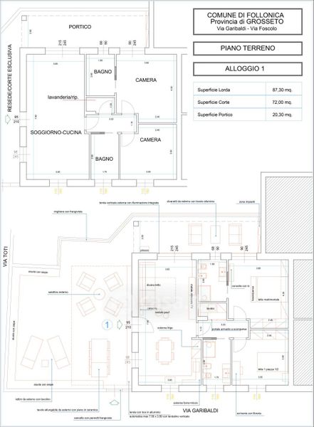
Appartamento in vendita Via Giuseppe Garibaldi , Follonica
Salva
Casa.it
1/22
  • Street View
  • Map