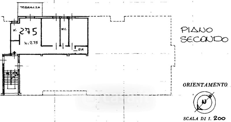
Appartamento in vendita Via Lago di Bracciano 10, Follonica
Salva
Casa.it
1/31
  • Street View
  • Map