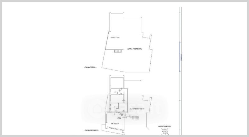
Appartamento in vendita Via G.Mazzini , Gambassi Terme
Salva
Casa.it
1/32
  • Street View
  • Map