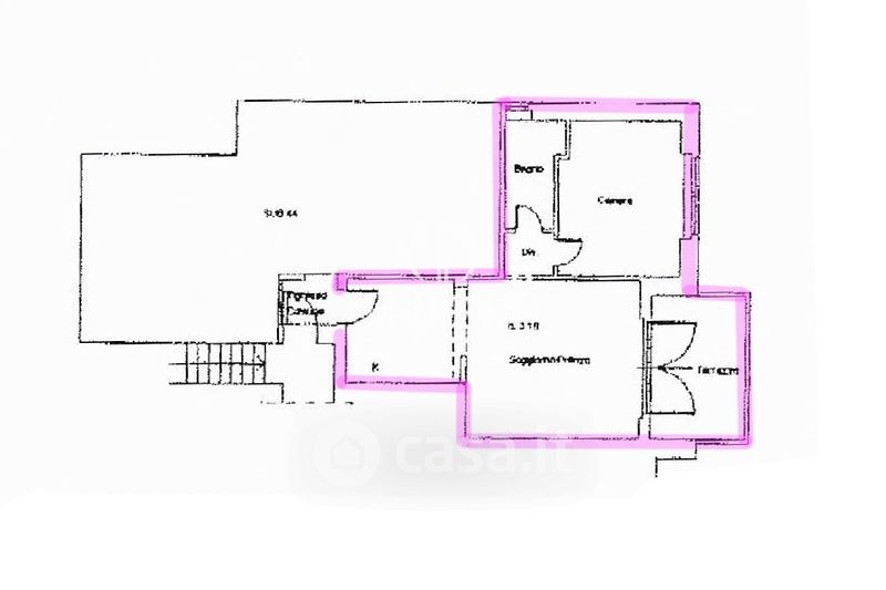
Appartamento in vendita Via Gorizia 30, Grosseto
Salva
Casa.it
1/12
  • Street View
  • Map