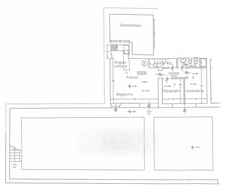
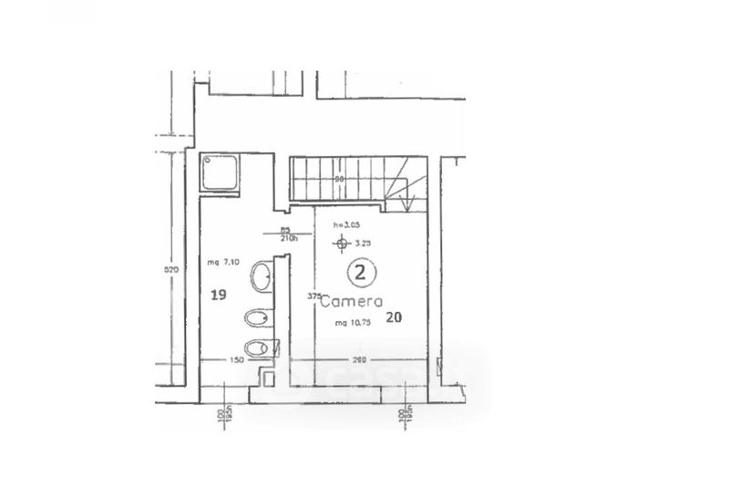
Appartamento in vendita Via Chiantigiana per Ferrone , Impruneta
Salva
Casa.it
1/21
  • Street View
  • Map