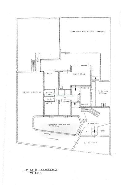
Appartamento in vendita Via Gaetano Salvemini 22, Impruneta
Salva
Casa.it
1/33
  • Street View
  • Map