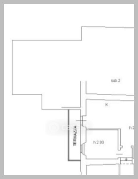
Appartamento in vendita Via di Carcheri , Lastra a Signa
Salva
Casa.it
1/32
  • Street View
  • Map