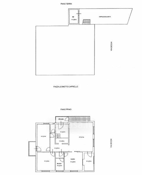
Appartamento in vendita Piazza Leonetto Cappiello 11 -6, Livorno
Salva
Casa.it
1/44
  • Street View
  • Map