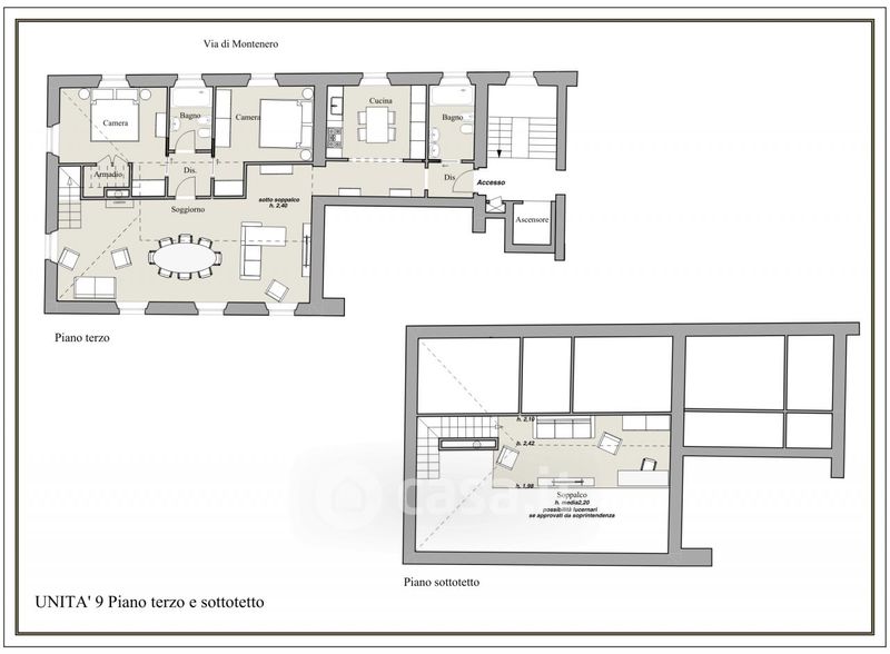
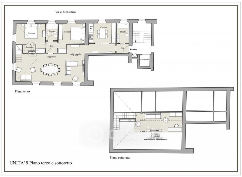
Appartamento in vendita Via dei Vallombrosani , Livorno
Salva
Casa.it
1/12
  • Street View
  • Map