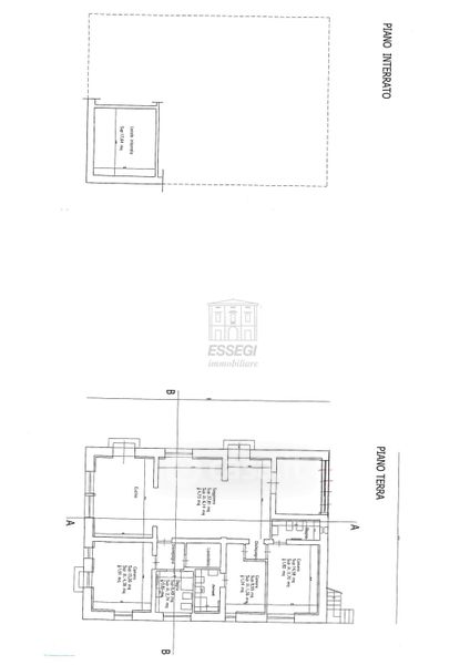
Appartamento in vendita Via Don Giorgio Bigongiari 63, Lucca
Salva
Casa.it
1/1
  • Street View
  • Map