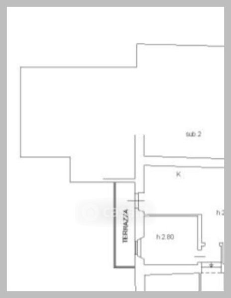
Appartamento in vendita Via del Monco , Massa
Salva
Casa.it
1/32
  • Street View
  • Map