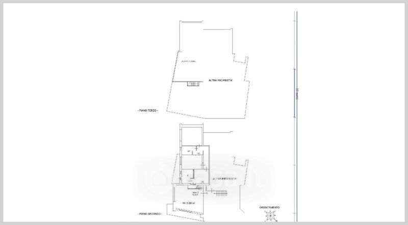
Appartamento in vendita Via Dei Maestri D'ascia , Monte Argentario
Salva
Casa.it
1/37
  • Street View
  • Map