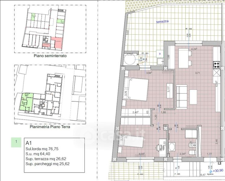
Appartamento in vendita Via Virgilio Rovai 2, Montelupo Fiorentino
Salva
Casa.it
1/33
  • Street View
  • Map