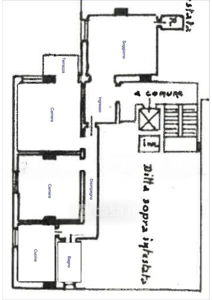
Appartamento in vendita Via Fratelli Rosselli , Pescia
Salva
Casa.it
1/28
  • Street View
  • Map