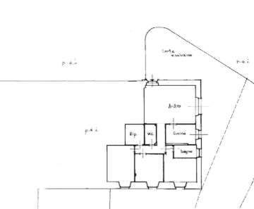
Appartamento in vendita Viale del Vergaiolo , Pieve a Nievole
Salva
Casa.it
1/17
  • Street View
  • Map