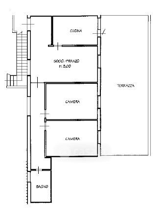
Appartamento in vendita Via Empolese 79 /A, Pieve a Nievole
Salva
Casa.it
1/22
  • Street View
  • Map