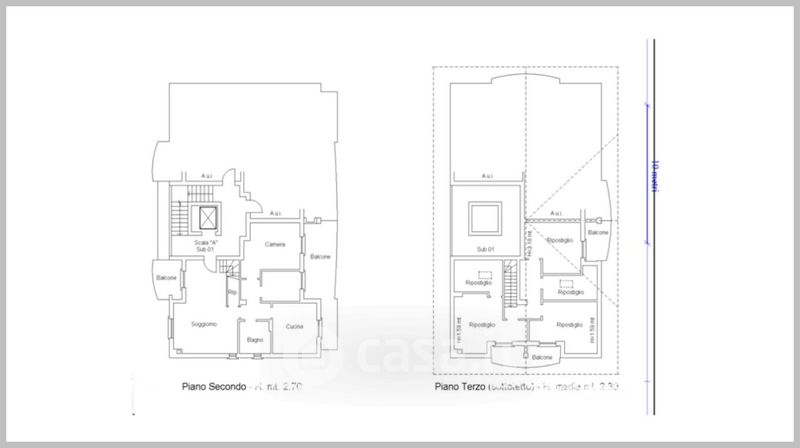
Appartamento in vendita Via Giuseppe Mazzini , Pisa
Salva
Casa.it
1/32
  • Street View
  • Map