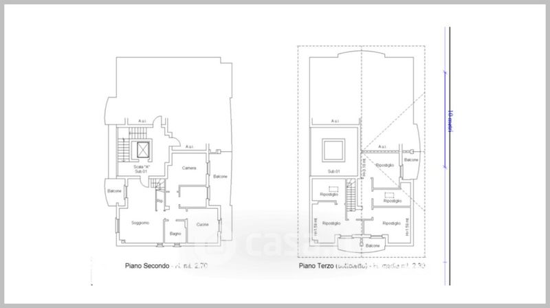
Appartamento in vendita Via Ludovico D'Aragona , Pistoia
Salva
Casa.it
1/32
  • Street View
  • Map