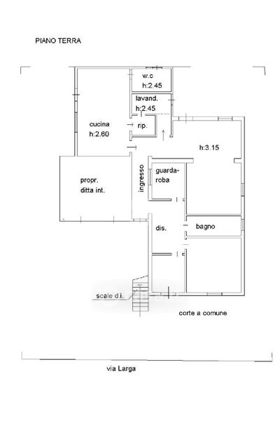
Appartamento in vendita Via Larga 164, Quarrata
Salva
Casa.it
1/45
  • Street View
  • Map