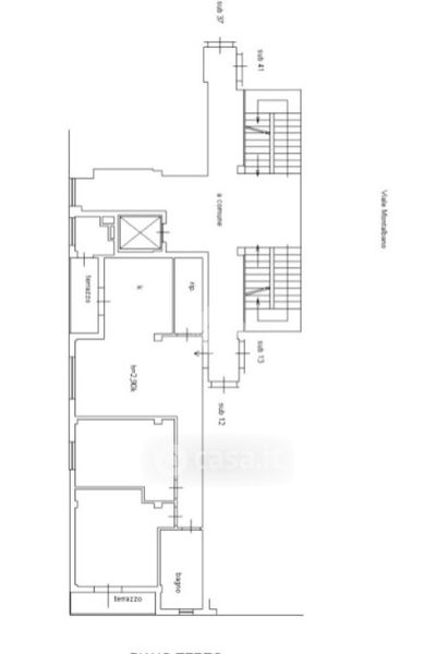
Appartamento in vendita Via Montalbano 67, Quarrata
Salva
Casa.it
1/22
  • Street View
  • Map